SALINENHOF BAD NAUHEIM
Magisches Wohnen
Magisches Wohnen
Wasserspiele im parkähnlich angelegten Innenhof, eingefasst von einem klassischen Neubau und Einzelkulturdenkmälern – das ist der Salinenhof.
Von Parkanlagen eingefasst und doch fußläufig zur Innenstadt – auch das ist der Salinenhof.
Höchste Ausführungsqualität, nachhaltige Baustoffe und modernste Glasfasertechnik sind das Ergebnis einer anspruchsvollen und zeitgemäßen Planung. Ende des Jahres wird das Projekt final abgeschlossen sein.
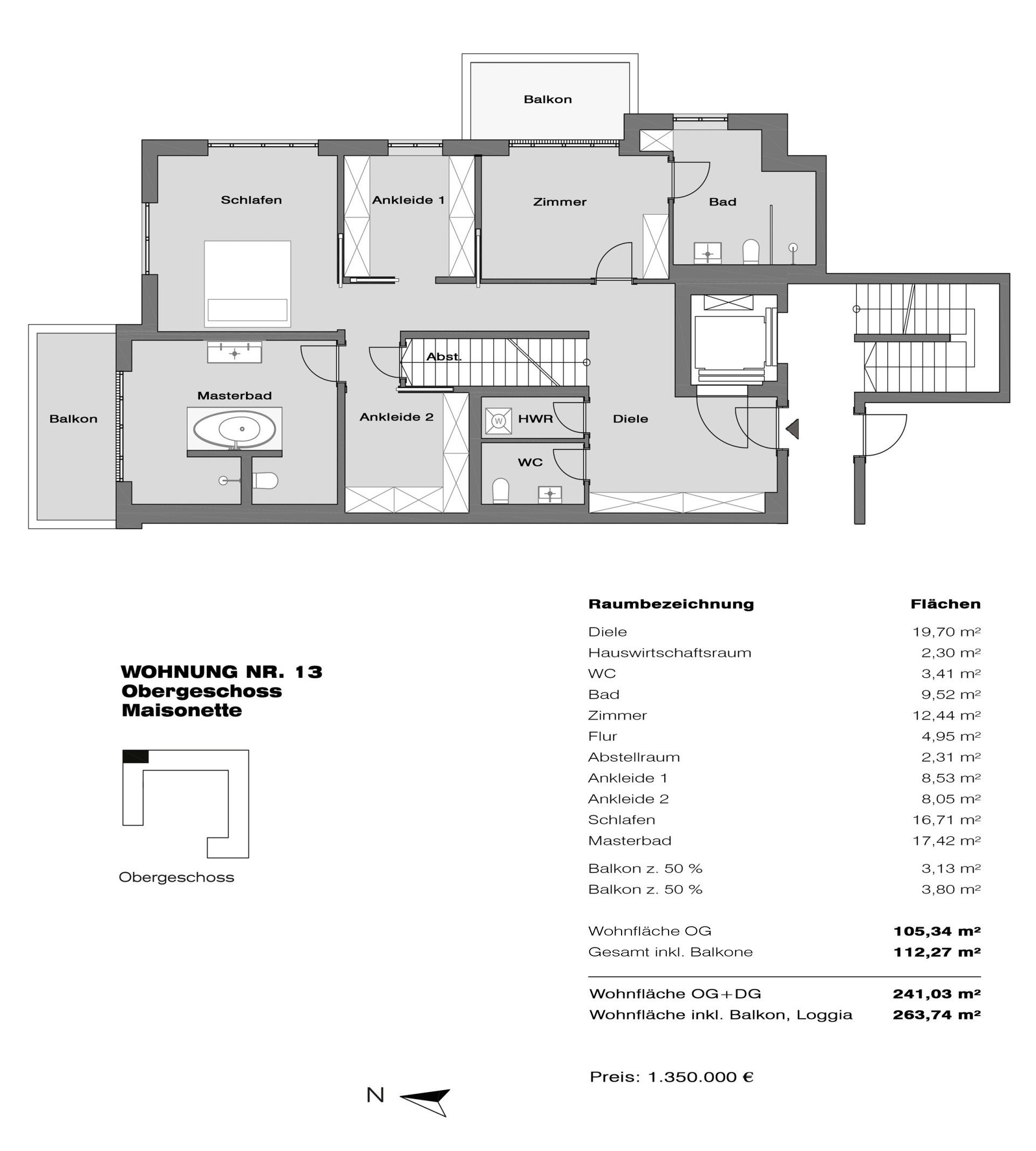
Eine Luxus Maisonette im OG und DG mit 261 m² lässt viel Spielraum für individuelle Wohnideen. Ein Kamin im Kochen/Essen/Wohnen Bereich mit 60 m², 3 Schlafzimmer, 3 Bäder, 2 Ankleiden, TV-Raum, Gäste-WC, HWR, 30 m² Dachloggia und 2 Balkone macht Träume wahr.












