Georgenstraße 9 - Am Golfplatz
Zentral und doch naturnah
Zentral und doch naturnah
Der Name ist Programm: Das Grundstück liegt in unmittelbarer Nähe zum Golfplatz von Bad Nauheim. Nur ein Steinwurf entfernt befindet sich der Bad Nauheimer Bach mit seinem Naherholungsgebiet. Unser Neubau orientiert sich an der gewachsenen Umgebung und trägt eine eigene Handschrift in Bezug auf die Architektursprache. Zentral und doch naturnah bettet sich das Projekt in das bestehende Wohnareal.
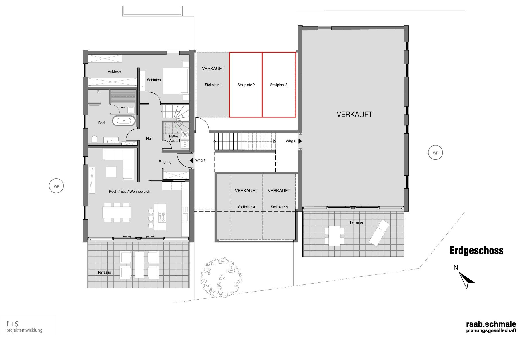
Auf der Georgenstraße 9 sind zwei Mehrfamilienhäuser mit einem dazwischen liegenden Garagenbau vorgesehen, dieser dient zur Erschließung der Obergeschosse. Beide Gebäude fassen jeweils zwei Maisonette Wohnungen. Die 4 Stadtdomizile mit ihren vier Zimmern präsentieren sich mit stilvollendeter Architektur und extravaganten Details. Die individuelle Fassade und eine ausgewählte Grünanlage runden dieses Wohnkonzept ab und sorgen bei dieser stadtnahen Immobilie für einen entspannten Flair.
Eine geschickte Raumaufteilung mit großzügigen Zimmern lässt viel Spielraum für eigene Wohnideen. Wohn- und Schlafzimmer sind klar voneinander getrennt. Großzügige und bodentiefe Fenster machen luftiges und helles Wohnen möglich. Die Wohnungsgrößen liegen bei 139, 140, 147, und 153 m². Die Ausbaumaterialien, Oberflächen und die handwerkliche Qualität suchen ihresgleichen. Die komplette Innenausstattung wird über die Firma Schnitzer in Bruchköbel bezogen. Ein Keller sowie ein eigener abschließbarer Fahrradkeller gehören jeweils zu jeder Wohnung.
Zum Verkauf:
Wohnung 1: 153 m² - 765.000 €
Stellplätze können zusätzlich erworben werden.
GRUNDRISSE
City skyline
Photo By: John Doe
Button
zurück zur Übersicht





